Build year:

2008

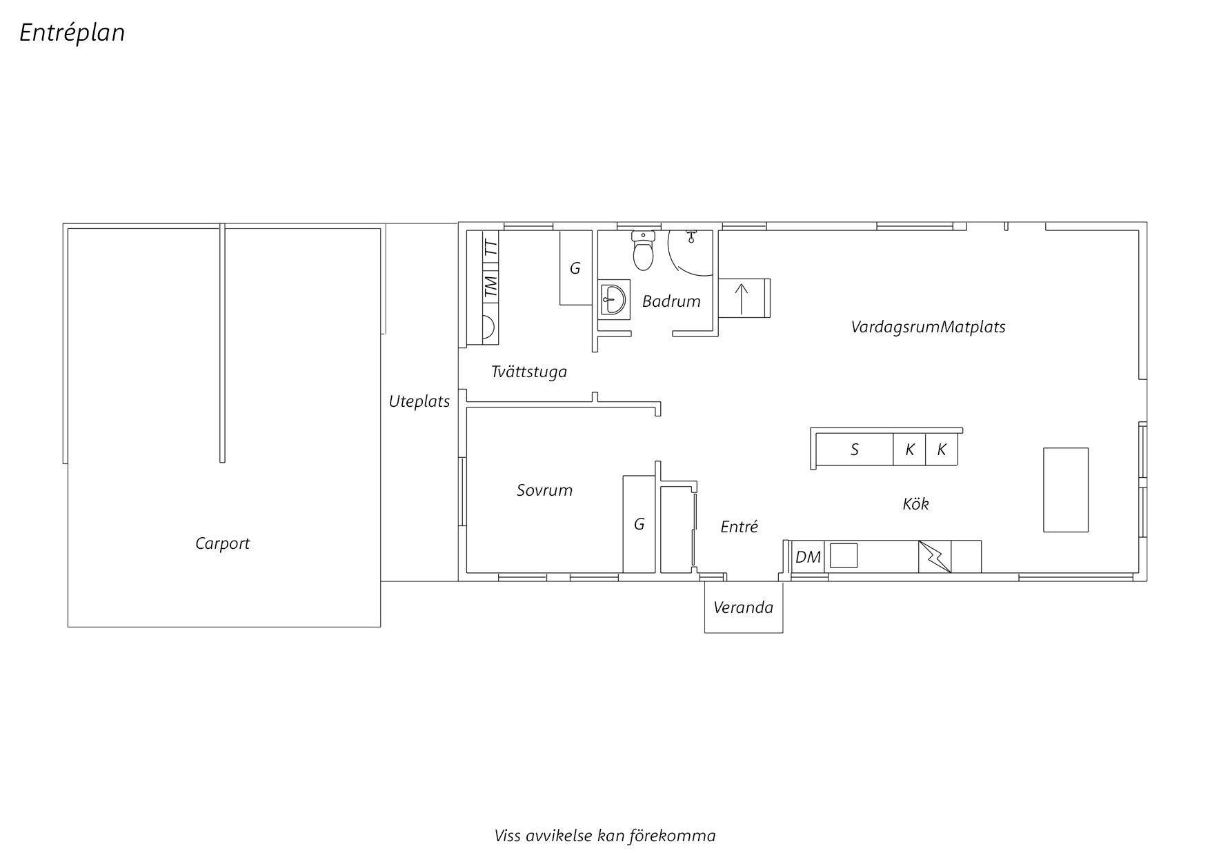
Room:

6

Living area:

145 sqm

Price:

Contact broker for Price

House in Sweden for sale

About the Real Estate

  • Property type:

    House
  • Build year:

    2008
  • Number of rooms:

    6
  • Living area: 145 sqm
  • Plot size:

    381 sqm
  • Operating cost year:

    33 654 SEK

Address Information

  • Street address:

    Säterigatan 16
  • City:

    Helsingborg
  • Municipality:

    Helsingborg
  • County:

    Skåne
  • Country:

    Sweden
The property is located here
Click here to load the map